O correto dimensionamento e lógica funcional de uma fábrica de mobiliário ou carpintaria, dependem do conhecimento de todo o processo produtivo. Por outro lado, o atual sistema de simplificação dos processos de licenciamento industrial nas suas diversas tipologias com apertadas regras ambientais e de segurança no trabalho, determina os fatores a serem considerados na elaboração de qualquer layout produtivo. Tomando partido de quadros com mais de 30 anos de experiência no setor associados a técnicos especializados, a TETRIS Consulting conceptualiza layouts produtivos que combinam na perfeição fluxos de produção escorreitos e funcionais com os apertadas exigências dos processos rinais de Licenciamento de Atividade Industrial.
ENGENHARIA
Layout Simples
Uma correta implantação dos equipamentos produtivos e a definição lógica de áreas de trabalho, são fundamentais para a
garantia da maximização dos índices de produtividade.
Atenta à realidade presente e à expectável progressão futura de cada cliente em função do seu potencial e da sua visão
estratégica para o seu negócio, a TETRIS Consulting dimensiona e representa layouts de chão de fábrica de raiz ou de mera
adaptação por incorporação pontual de equipamentos.
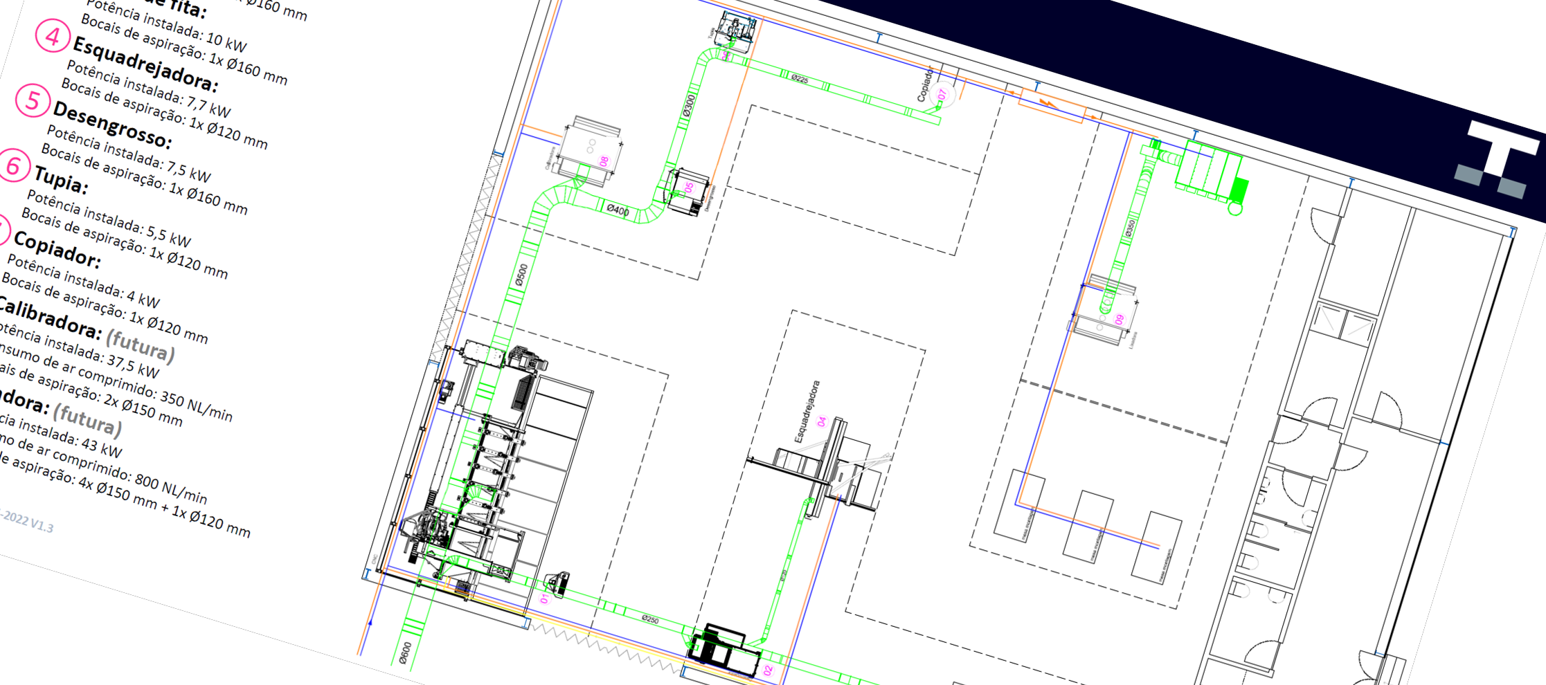
Layout De Meios Técnicos
Uma vez definido o layout simples, torna-se imperativo definir o layout de todos os meios técnicos, desde aspiração, ar
comprimido, energia e IT, aos meios de segurança contra incêndio e afins.
Em estrita parceria com especialistas de cada área e considerando as condicionantes infraestruturais, a TETRIS Consulting
define e representa a proposta de meios técnicos necessários para a realidade presente e para expetativas futuras, no sentido
de tornar menos onerosas eventuais futuras adaptações.
Com este documento, torna-se mais fácil e coerente a intervenção de cada um dos intervenientes em cada especialidade.
Layout De Fluxos Produtivos
A importância dum layout de fluxos produtivos prende-se com a definição de uma lógica interna de funcionamento e de
organização de todo o processo de fabricação.
Saber quem faz o quê, para onde vai algo ou onde fica, reduz a probabilidade de erros, otimiza a ocupação de espaços e
racionaliza a utilização de meios, promovendo a majoração dos níveis de produtividade da estrutura.
Auscultando todos os intervenientes no processo e percebendo os passos e a lógica de fabricação, a TETRIS Consulting
desenvolve este tipo de estudo de forma dinâmica e com realismo.
Licenciamento Da Atividade Industrial
O atual sistema simplificado de licenciamento industrial, permite uma expedita emissão do título e coloca o ónus da
efetivação de todos os requisitos exigíveis no seu promotor.
Como conclusão lógica de todos os estudos anteriores, a TETRIS Consulting trabalha com especialistas nesta área que mais
facilmente conduzem todos os formalismos necessários para a emissão do título de licenciamento da atividade industrial nas
suas várias tipologias, garantindo a correspondência do existente com as exigências legais.










